Budapest
Kiadó Lakás
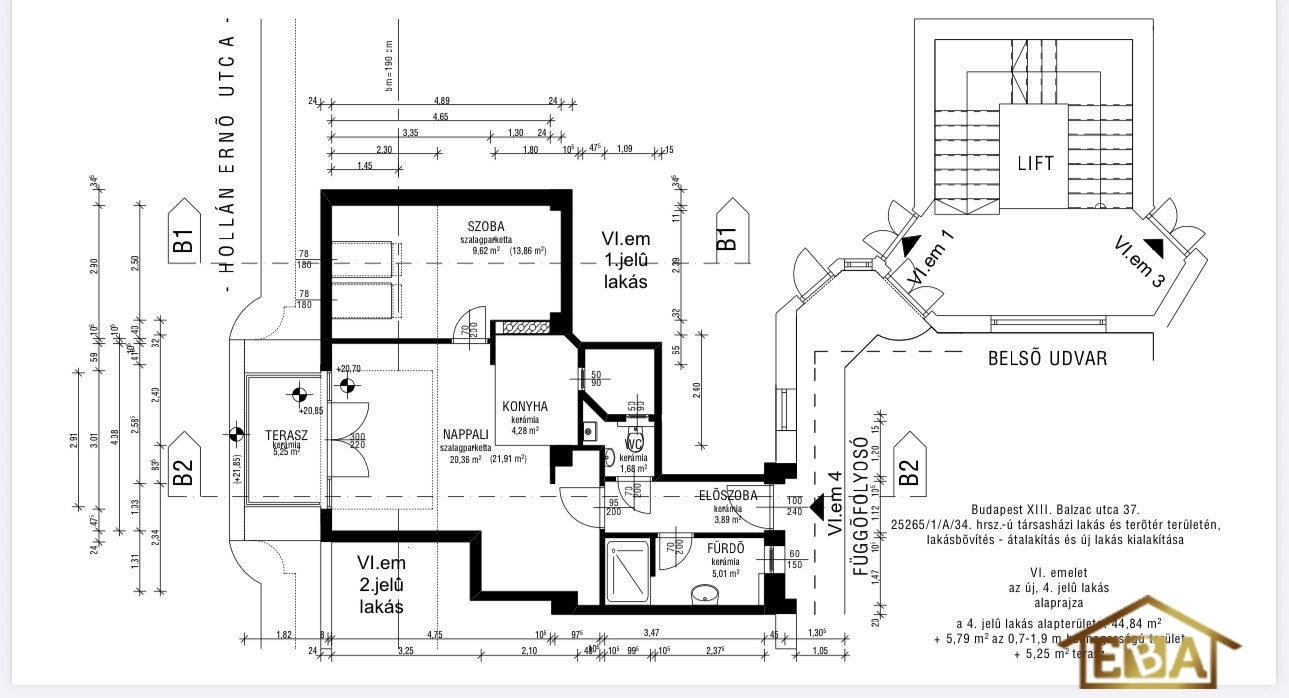
XIII. kerület, , Balzac utca
45 m2
300.000 Ft / hó
352011
Budapest - Kiadó Lakás
XIII. kerület, Balzac utca
45 m2
300.000 Ft / hó
352011
Leírás
XIII. kerület, Balzac utcában, ÚJSZERŰ, nappali + hálós, ERKÉLYES, PANORÁMÁS lakás kiadó!
Balzac-Hollán sarkon, 2013-ban épült ház legfelső szintjén kiadó ez a teraszos lakás.
A lakást 12 éve alakították ki, frissen festve.
Konyha és fürdőszoba berendezéssel és beépített szekrényekkel, de ezen kívül bútorozatlanul kiadó. Egyeztetés alapján bútorozás lehetséges.
Légkondicionált!
REZSI: gázkazán fűtés, egyedi vízóra, közös költség: 15.00 Ft/hó.
Igény esetén a közelben garázs bérlehető mellé, díja + 45.000 Ft.
KÖRNYÉK, INFRASTRUKTÚRA kiváló: a közelben boltok, éttermek, a Lehel piac is közel. A Szent István park, Margit-sziget is pár perces sétával megközelíthető.
KÖZLEKEDÉS: több busz és a metró megállók is pár perces sétával elérhetőek.
2 havi kaucióval és az első havi bérleti díjjal költözhető önmagára- és környezetére is igényes új lakóinak.
---
KERESŐ ÜGYFELEINK RÉSZÉRE KÖZVETÍTŐI SZOLGÁLTATÁSUNK DÍJTALAN, hétvégén is hívható vagyok!
Paraméterek
Paraméterek
| Település: | Budapest XIII. kerület |
| Közterület: | Balzac utca |
| Tranzakció típusa: | Kiadó |
| Ingatlan típusa: | Lakás / Tégla |
| Alapterület: | 45 m2 |
| Szobaszám: | 1 + ½ |
| Költözhető: | azonnal |
| Kaució: | 2 havi |
| Rezsi (kb.): | 15 ezer Ft / hó |
| Közös költség: | 15 ezer Ft / hó |
| Állapot: | Újszerű |
| Komfort: | Összkomfortos |
| Tetőtér: | Legfelső emelet, nem tetőtéri |
| Szintek száma az épületben: | 6 szintes |
| Emelet: | 6. emelet |
| Lift: | Van |
| Fűtés: | Házközponti fűtés egyedi méréssel |
| Belmagasság: | 3 méter alatt |
| Wc és fürdőszoba: | Külön helyiségben |
| Erkély: | Igen |
| Terasz: | 6 m2 |
| Kertkapcsolatos: | Nem |
| Honnan nyílik: | Lépcsőházból |
| Felszereltség: | Részben bútorozott |
| Kilátás: | Panorámás |
| Parkolás: | Teremgarázs |
| Extrák: | Internet / WiFi, TV, Légkondicionáló, Beépített konyha, Amerikai konyhás, Alacsony rezsi |
| Gépiesített: | Igen |
| Dohányzás: | Nem engedélyezett |
| Kiadás időtartama: | min. 1 év |
| Kisállat vihető: | Nem |
Az ingatlan elhelyezkedése
Kapcsolati adatok
Érdeklődjön az ingatlanról, e-mailben!
Adatkezelési Tájékoztató
Mandics Tímea Tünde e.v.
H-1084 Budapest, Német utca 8. II./14.
1. Általános rendelkezések és elérhetőségek
A jelen tájékoztató („Tájékoztató”) a Mandics Tímea Tünde e.v. által kezelt,
azonosított vagy azonosítható természetes személyre (érintett) vonatkozó bármely
információ (személyes adat) kezelésére vonatkozik.
A Mandics Tímea Tünde e.v. a GDPR rendelkezéseit 2018. május 25-től köteles
alkalmazni.
A Mandics Tímea Tünde e.v. székhelye: H-1084 Budapest, Német utca 8. II./14.
A Mandics Tímea Tünde e.v. weboldala: https://eladberbead.hu/
A Mandics Tímea Tünde e.v. telefonszáma: +36-20-938-0100.
A Mandics Tímea Tünde e.v. irodavezetőjének E-mail címe:
eladberbead@gmail.com
Ha Önnek bármilyen kérdése vagy észrevétele van ezzel a Tájékoztatóval
kapcsolatban, mielőtt használná a fentebb megadott weboldalt, vagy valamilyen
adatot a jelen Tájékoztató szerint átadna, kérjük lépjen kapcsolatba Mandics Tímea
Tünde irodavezetővel a Mandics Tímea Tünde e.v. képviseletében a fenti
elérhetőségek valamelyikén.
2. A Tájékoztató frissítése és elérhetősége
Mandics Tímea Tünde irodavezető Mandics Tímea Tünde e.v. képviseletében
fenntartja a jogot, hogy a jelen Tájékoztatót egyoldalúan, a módosítást követő
hatállyal módosítsa. Erre tekintettel ajánlott rendszeresen látogatni a
https://eladberbead.hu weboldalt abból a célból, hogy figyelemmel kísérhesse a
változásokat. Kérésére átadjuk Önnek a mindenkor hatályos Tájékoztatót nyomtatott
formában.
3. A Tájékoztató megismerése és elfogadása
A személyes adat rendelkezésre bocsátásával Ön megerősíti, hogy a
Tájékoztatónak az adat rendelkezésre bocsátásának időpontjában hatályos
változatát megismerte és kifejezetten elfogadja. Egyes külön szolgáltatások
igénybevétele során specifikus adatvédelmi feltételek is alkalmazandók lehetnek,
melyekről Ön az adott szolgáltatás igénybevétele előtt kaphat tájékoztatást.
4. A kezelt adatok köre és adatkezelési célok
Mandics Tímea Tünde irodavezető akként nyilatkozom, hogy Mandics Tímea Tünde
e.v. képviseletében általunk kezelt személyes adatok köre, az adatkezelési célok,
valamint az adatkezelés időtartama és az adatokhoz való hozzáférésre jogosultak
köre az alábbi táblázatban kerül bemutatásra:
Az adatkezelés
megnevezése és célja
Az adatkezelés
jogalapja
A kezelt adatok
köre
Az adatkezelési
időtartam
Kik férhetnek hozzá
a személyes
adatokhoz?
Ön, mint a Mandics
Tímea Tünde e.v.
ügyfele és az Ön által
megvásárolni kívánt
ingatlanok eladói
között létrejövő adás-
vételi szerződések
előkészítése körében:
az eladók számára a
Mandics Tímea
Tünde e.v. ún. "sales
management"
szolgáltatást nyújt, és
ennek keretében
készíti elő az ingatlan
adás-vételi ajánlatot,
majd az adás-vételi
szerződés
előkészítéséhez
szükséges személyes
A Polgári
Törvénykönyvről
szóló 2013. évi V.
törvény („Ptk.”)
6:288. § [Közvetítői
szerződés].
GDPR 6. cikk (1) b)
–
az adatkezelés olyan
szerződés
teljesítéséhez
szükséges, amelyben
Ön az egyik fél,
valamint az
adatkezelés a
szerződés megkötését
megelőzően az Ön
kérésére történő
lépések megtételéhez
szükséges.
Magánszemély
eladók ÉS vevők
vonatkozásában:
teljes név, születési
név, anyja neve,
születési hely és idő,
állandó lakcím,
adóazonosító jel,
személyazonosító jel,
személyi okmány
azonosító száma.
Eladók esetén ezen
felül az ingatlan
helyrajzi száma,
természetbeni címe,
jellege, helyiségeinek
száma, alapterülete és
az energiatanúsítvány
száma.
Az adatokat az Önnel
való kapcsolat
megszűnését
követően
a Ptk.6:22.§ alapján
1 év múlva töröljük.
Ha az adatokat a
Számvitelről szóló
2000. évi C. törvény
(„Számviteli
Törvény”) 169.§
alapján kötelesek
vagyunk megőrizni,
az adatokat az Önnel
való kapcsolat
megszűnését
követően
8 év múlva töröljük.
A gyakorlatban ilyen
eset, ha az adatok a
A Mandics Tímea
Tünde e.v. vetetője,
értékesítői, és az
adás-vételi
szerződések
előkészítésével
kapcsolatban
illetékes
kollégái, valamint a
Mandics Tímea
Tünde e.v.-nak az
Ügyféladatbázist
működtető
munkatársai.
Önnek joga van
mindannyiukkal
szemben gyakorolni
a GDPR szerinti
jogait.
adatait az Ön előzetes
engedélyével
továbbítja az Ön által
jóváhagyott adás-
vételi szerződést
készítő és ellenjegyző
ügyvédnek. Ezeket az
adatokat a Mandics
Tímea Tünde e.v.
külön adatbázisban
kezeli
("Ügyféladatbázis")
könyvelést
alátámasztó iratok
részét képezik,
például
a szerződéskötéssel
kapcsolatos
dokumentumokban
(adott esetben
magában a
szerződésben)
vagy a kiállított
számlán szerepelnek.
Kizárólag az Ön
érdeklődése esetén
reklámanyagok (pl.
friss információk és
az induló projektek
kapcsán tájékoztatás)
küldése e-mailben és
telefonon (közvetlen
üzletszerzés)
Mandics Tímea
Tünde e.v. részéről.
A Mandics Tímea
Tünde e.v. csoporttal
kapcsolatban álló
eladók által árult
–többek között a
vállalkozás
weboldalán –
található ingatlanok
megvásárlása,
bérlete, egyéb
szolgáltatások
iránt érdeklődő
ügyfelek közvetlen
megkeresése az
ingatlanok, a
szolgáltatások
ügyfelekkel való
megismertetése
céljából, telefonos
úton vagy e-mailben.
Ptk. 6:382. § - 6.415.
§ [A hitel-és a
számlaszerződések].
GDPR 6. cikk (1) b)
–
az adatkezelés olyan
szerződés
teljesítéséhez
szükséges, amelyben
Ön az egyik fél,
valamint az
adatkezelés a
szerződés megkötését
megelőzően az Ön
kérésére történő
lépések megtételéhez
szükséges.
A gazdasági
reklámtevékenység
alapvető feltételeiről
és egyes korlátairól
szóló 2008. évi
XLVIII. törvény
(„Grt.”) 6. § (1)
és a GDPR 6. cikk 1
a) pontja – az érintett
személy előzetes,
egyértelmű és
kifejezett
hozzájárulása.
Az Ön neve, e-mail
címe és
telefonszáma.
Az adatok
szolgáltatása a hitel-
és
számlaszerződések
esetleges
bankok általi
előkészítésének,
megkötésének és
teljesítésének
előfeltétele. Ön nem
köteles megadni az
adatokat, de ennek
hiányában nem lehet
azonosítani az Ön
által az
ingatlanvásárláshoz
kért hitel, illetve
kapcsolódó pénzügyi
szolgáltatás
jellemzőit, nem lehet
hiteltájékoztatást
és egyéb kapcsolódó
információt adni, és
nem lehet
előkészíteni
a szerződés(eke)t.
Ön bármikor,
korlátozás és
indokolás nélkül,
ingyenesen
visszavonhatja
a jelen adatkezelési
célhoz adott
hozzájárulását
(leiratkozhat
a reklámokról és a
hiteltájékoztatásról)
a jelen
tájékoztatóban
meghatározott
elérhetőségeken!
A Mandics Tímea
Tünde e.v.-nak az
Ügyféladatbázist
működtető
és a reklámanyagok
küldése során eljáró
munkatársai,
valamint
hiteltájékoztatások
esetén a Mandics
Tímea Tünde e.v.-
nak az
Ügyféladatbázist
működtető
munkatársai.
5. Személyes adatok átadása szerződéses partnereinknek
Mandics Tímea Tünde irodavezető a Mandics Tímea Tünde e.v. képviseletében az
adatkezelési műveletekhez kapcsolódó feladatok elvégzésére során csupán az
ügyfelei által írásban előzetesen jóváhagyott - az esetleges ingatlanokra vonatkozó
szerződésekhez feltétlenül szükséges (adás-vételi szerződés, adásvétellel vegyes
csereszerződés, csereszerződés, bérleti szerződés és az ezekhez kapcsolódó
előszerződések) adatokat veszi igénybe. A szerződéses partner úgynevezett
„adatfeldolgozóként” jár el: az adatok felhasználásával kapcsolatos jogait és
kötelezettségeit Mandics Tímea Tünde irodavezető a Mandics Tímea Tünde e.v.
képviseletében határozza meg, és az adatkezelést érintő érdemi döntést nem
hozhat. Az adatokat nem dolgozhatja fel saját céljára, továbbá a személyes adatokat
Mandics Tímea Tünde irodavezető a Mandics Tímea Tünde e.v. képviseletében ezen
tájékoztató rendelkezései szerint köteles tárolni és megőrizni.
6. Mandics Tímea Tünde irodavetetőnek a Mandics Tímea Tünde e.v.
képviseletében, weboldalán felhasznált sütijei
A fentebb említett Mandics Tímea Tünde irodavezető Mandics Tímea Tünde e.v.
képviseletében üzemeltetett weboldal(ak)on, valamint a későbbiekben ehhez
kapcsolódó esetleges további weboldalak bizonyos területein használunk sütiket
(cookie-kat). A sütik olyan fájlok, melyek információt tárolnak az Ön merevlemezén
vagy webes keresőjén.
A sütik például lehetővé teszik a weboldal számára, hogy felismerje, ha Ön korábban
azt már meglátogatta, vagy segítenek nekünk megérteni, hogy a weboldal melyik
része a legnépszerűbb, mert látni engedik, hogy látogatóink mely oldalakra lépnek be
és mennyi időt töltenek ott. Ennek tanulmányozásával a weboldalt jobban tudjuk
igazítani az Ön igényeihez, és még változatosabb felhasználói élményt tudunk
nyújtani Önnek. A sütik segítségével biztosítani tudjuk azt is, hogy az Ön következő
látogatása alkalmával megjelenő információk meg fognak felelni az Ön felhasználói
elvárásainak.
Mikor Ön felkeresi valamely weboldalunkat, sor kerülhet olyan technikai információk
automatikus gyűjtésére is, melyekből az Ön személye nem azonosítható. Például egy
olyan másik weboldal neve, mely Önt erre a weboldalra irányította, a weboldalhoz
való hozzáférés helyszíne, a weboldalon végzett keresések. Ezen információk
gyűjtése segítséget nyújt számunkra a weboldalunk felhasználói által preferált
keresési szokások személyes adatok felhasználása nélkül történő felismerésében.
Ezen információk kizárólag belsőleg kerülnek felhasználásra. A névtelen vagy
általános jellegű adatok, melyekből az Ön személye nem azonosítható, nem
minősülnek személyes adatnak, így nem tartoznak ezen Tájékoztató hatálya alá.
Ön beállíthatja webes keresőjét, hogy elfogadjon minden sütit, elutasítsa mindet,
vagy értesítse Önt, ha süti érkezik az Ön gépére. Mindegyik webes kereső
különböző, így kérjük használja keresője “Segítség” menüjét a sütik beállításainak
módosításához. A sütik természetével, valamint kikapcsolásukkal kapcsolatos
további információt a
http://www.youronlinechoices.com/hu/
oldalon talál. Mandics Tímea Tünde irodavezető a Mandics Tímea Tünde e.v.
képviseletében kijelenti, hogy jelenlegi weboldala és az esetlegesen elkészülő
további weboldalai is sütik használatával történő működésre készült(ek), illetve
készülnek majd, így azok kikapcsolása hatással lehet a weboldal használhatóságára,
és megakadályozhatja, hogy Ön annak minden előnyét kihasználja.
A leggyakrabban használt böngészők esetében a sütik kezelésére vonatkozó
menüpontok:
Mozilla Firefox: https://support.mozilla.org/t5/Cookies-and-cache/Enable-and-disable-
cookies-that-websites-use-to-track-your/ta-p/2784
Google Chrome:
https://support.google.com/chrome/answer/95647?co=GENIE.Platform%3DDesktop&
hl=en
Internet Explorer: https://support.microsoft.com/en-us/help/17442/windows-internet-
explorer-delete-manage-cookies
A Google Analytics további lehetőségeket biztosít a Google Analytics
szolgáltatásokról való leiratkozáshoz: http://tools.google.com/dlpage/gaoptout?hl=en-
GB.
7. Gyermekekkel és harmadik személyekkel kapcsolatos személyes adatok
16. éven aluli személyek nem adhatnak meg magukról személyes adatot, kivéve, ha
szülőktől ehhez engedélyt kértek.
Személyes adatok rendelkezésre bocsátásával Ön kijelenti és szavatolja, hogy a
fentiekre figyelemmel jár el, cselekvőképessége az információk rendelkezésre
bocsátásával kapcsolatban nem korlátozott.
Amennyiben Ön bármely személyes adat rendelkezésre bocsátására jogilag önállóan
nem jogosult, Ön köteles az érintett harmadik személyek (pl. törvényes képviselő,
gondnok, egyéb személy, akinek a nevében eljár) beleegyezését megszerezni, vagy
az adatok rendelkezésre bocsátásához más jogalapot biztosítani. Ezzel
összefüggésben Ön köteles mérlegelni, hogy az adott személyes adat rendelkezésre
bocsátásával összefüggésben szükség van-e valamely harmadik személy
hozzájárulására. Előfordulhat, hogy Mandics Tímea Tünde irodavezető Mandics
Tímea Tünde e.v. képviseletében valamely érintett személlyel személyes
kapcsolatba nem kerül, így a jelen pontnak való megfelelést Ön köteles biztosítani,
és Mandics Tímea Tünde irodavezető Mandics Tímea Tünde e.v. képviseletébent
ezzel összefüggésben felelősség nem terheli.
Ettől függetlenül, Mandics Tímea Tünde irodavezető Mandics Tímea Tünde e.v.
képviseletében mindenkor jogosult ellenőrizni, hogy valamely személyes adat
kezelésére a megfelelő jogalap rendelkezésre áll-e. Például, ha Ön harmadik
személy nevében jár el, jogosultak vagyunk kérni az Ön meghatalmazását és/vagy
az érintett személy megfelelő adatkezelési hozzájárulását az adott ügyre
vonatkozóan.
Minden ésszerű erőfeszítést megteszünk annak érdekében, hogy töröljünk
valamennyi információt, amely jogosulatlanul bocsátottak rendelkezésünkre, és
biztosítjuk, hogy ezen információ más számára nem kerül továbbításra, sem általunk
történő felhasználásra (sem reklámozási, sem egyéb célból). Kérjük, közölje velünk
haladéktalanul, ha azt tapasztalja, hogy egy gyermek önmagáról, vagy egy harmadik
személy Önről jogosulatlanul bocsátott rendelkezésre személyes adatot. A
Tájékoztató elején kiemelt elérhetőségeinken léphet kapcsolatba velünk.
8. Adatbiztonsági intézkedések
Mandics Tímea Tünde irodavezető Mandics Tímea Tünde e.v. képviseletében az
általa kezelt személyes adatokat az információkhoz való hozzáférés korlátozásával
védi. Például csak azon személyek férhetnek hozzá az adatokhoz, akik számára az a
fent említett célok elérése érdekében szükséges.
9. Az Ön adatvédelmi jogai és jogorvoslati lehetőségei
Ön kérelmezheti tőlünk:
(a) tájékoztatását személyes adatai kezeléséről,
(b) személyes adatainak helyesbítését, valamint
(c) személyes adatainak – a kötelező adatkezelés kivételével – törlését vagy
zárolását.
Mandics Tímea Tünde irodavezető Mandics Tímea Tünde e.v. képviseletében
köteles a kérelem benyújtásától számított legrövidebb idő alatt, legfeljebb azonban
30 napon belül, közérthető formában, az Ön erre irányuló kérelmére írásban megadni
a tájékoztatást.
Ha az Ön helyesbítés, zárolás vagy törlés iránti kérelmét nem teljesítjük, a kérelem
kézhezvételét követő 30 napon belül írásban vagy az érintett hozzájárulásával
elektronikus úton közöljük a helyesbítés, zárolás vagy törlés iránti kérelem
elutasításának ténybeli és jogi indokait.
Az információs önrendelkezési jogról és az információszabadságról szóló 2011. évi
CXII. törvény („Infotv.”) 21. §-ban meghatározott esetekben Ön tiltakozhat személyes
adatainak kezelése ellen. Mandics Tímea Tünde irodavezető Mandics Tímea Tünde
e.v. képviseletében a tiltakozást a kérelem benyújtásától számított legrövidebb időn
belül, de legfeljebb 15 napon belül megvizsgálja, annak megalapozottsága
kérdésében döntést hoz, és döntéséről Önt írásban tájékoztatjuk.
Ön a jogainak megsértése esetén bírósághoz fordulhat. A per – az Ön választása
szerint – az Ön lakóhelye vagy tartózkodási helye szerinti törvényszék előtt is
megindítható.
A Nemzeti Adatvédelmi és Információszabadság Hatóságnál (http://naih.hu/; 1530
Budapest, Pf.: 5.; telefon: +36-1-391-1400; fax: +36-1-391-1410; e-mail:
ugyfelszolgalat@naih.hu) bejelentéssel bárki vizsgálatot kezdeményezhet arra
hivatkozással, hogy személyes adatok kezelésével kapcsolatban jogsérelem
következett be, vagy annak közvetlen veszélye fennáll.
Az adatkezeléssel kapcsolatos részletes jogokat és jogorvoslati lehetőségeket
részletesen az Infotv. 13-17. és 30. alfejezetei tartalmazzák.
Valamely eljárás kezdeményezése előtt célszerű lehet Mandics Tímea Tünde
irodavezetőnek Mandics Tímea Tünde e.v. képviseletében, mint adatkezelőnek
elküldeni a panaszt.
10. Adatvédelmi jogok és jogorvoslatok
2018. május 25-ét követően az Ön adatvédelmi jogait és jogorvoslati lehetőségeit, és
ezzel kapcsolatban a GDPR vonatkozó rendelkezéseit és korlátozásait részletesen a
GDPR tartalmazza (így különösen a GDPR 15., 16., 17., 18., 19., 20., 21., 22., 77.,
78., 79. és 82. cikkei). Az alábbiakban összefoglaljuk a legfontosabb
rendelkezéseket.
10.1 Az Ön hozzáférési joga
(1) Ön jogosult arra, hogy visszajelzést kapjon tőlünk arra vonatkozóan, hogy
személyes adatainak kezelése folyamatban van-e. Ha ilyen adatkezelés folyamatban
van, Ön jogosult arra, hogy a személyes adatokhoz és a következő információkhoz
hozzáférést kapjon:
a) az adatkezelés céljai;
b) az érintett személyes adatok kategóriái;
c) azon címzettek vagy címzettek kategóriái, akikkel a személyes adatokat közöltük
vagy közölni fogjuk, ideértve különösen a harmadik országbeli címzetteket, illetve a
nemzetközi szervezeteket;
d) adott esetben a személyes adatok tárolásának tervezett időtartama, vagy ha ez
nem lehetséges, ezen időtartam meghatározásának szempontjai;
e) az Ön joga, hogy kérelmezheti tőlünk az Önre vonatkozó személyes adatok
helyesbítését, törlését vagy kezelésének korlátozását, és tiltakozhat az ilyen
személyes adatok kezelése ellen;
f) valamely felügyeleti hatósághoz címzett panasz benyújtásának joga; és
g) ha az adatokat nem Öntől gyűjtötték, a forrásukra vonatkozó minden elérhető
információ;
h) automatizált döntéshozatal ténye, ideértve a profilalkotást is, valamint legalább
ezekben az esetekben az alkalmazott logikára és arra vonatkozó érthető információk,
hogy az ilyen adatkezelés milyen jelentőséggel bír, és az Önre nézve milyen várható
következményekkel jár.
(2) Ha személyes adatoknak harmadik országba történő továbbítására kerül sor, Ön
jogosult arra, hogy tájékoztatást kapjon a továbbításra vonatkozóan a megfelelő
garanciákról.
(3) Az adatkezelés tárgyát képező személyes adatok másolatát az Ön
rendelkezésére bocsátjuk. Ha Ön elektronikus úton nyújtotta be a kérelmet, az
információkat széles körben használt elektronikus formátumban kell rendelkezésre
bocsátani, kivéve, ha Ön másként kéri.
10.2 A helyesbítéshez való jog
Ön jogosult arra, hogy kérésére indokolatlan késedelem nélkül helyesbítsük az Önre
vonatkozó pontatlan személyes adatokat. Ön jogosult arra, hogy kérje a hiányos
személyes adatok – egyebek mellett kiegészítő nyilatkozat útján történő –
kiegészítését.
10.3 A törléshez való jog („az elfeledtetéshez való jog”)
(1) Ön jogosult arra, hogy kérésére indokolatlan késedelem nélkül töröljük az Önre
vonatkozó személyes adatokat, ha az alábbi indokok valamelyike fennáll:
a) a személyes adatokra már nincs szükség abból a célból, amelyből azokat
gyűjtöttük vagy más módon kezeltük;
b) Ön visszavonja az adatkezelés alapját képező hozzájárulását, és az
adatkezelésnek nincs más jogalapja;
c) Ön tiltakozik az adatkezelése ellen, és adott esetben nincs elsőbbséget élvező
jogszerű ok az adatkezelésre;
d) a személyes adatokat jogellenesen kezeltük;
e) a személyes adatokat a ránk alkalmazandó uniós vagy tagállami jogban előírt jogi
kötelezettség teljesítéséhez törölni kell; vagy
f) a személyes adatok gyűjtésére információs társadalommal összefüggő
szolgáltatások kínálásával kapcsolatosan került sor.
(2) Ha Mandics Tímea Tünde irodavezető Mandics Tímea Tünde e.v. képviseletében
nyilvánosságra hozta a személyes adatot, és az (1) bekezdés értelmében azt törölni
köteles, az elérhető technológia és a megvalósítás költségeinek figyelembevételével
megteszi az észszerűen elvárható lépéseket – ideértve technikai intézkedéseket –
annak érdekében, hogy tájékoztassa az adatokat kezelő adatkezelőket, hogy az
érintett kérelmezte tőlük a szóban forgó személyes adatokra mutató linkek vagy e
személyes adatok másolatának, illetve másodpéldányának törlését.
(3) Az (1) és (2) bekezdés nem alkalmazandó, amennyiben az adatkezelés
szükséges, többek között:
a) a véleménynyilvánítás szabadságához és a tájékozódáshoz való jog gyakorlása
céljából;
b) a személyes adatok kezelését előíró, a ránk alkalmazandó uniós vagy tagállami
jog szerinti kötelezettség teljesítése céljából;
c) a közérdekű archiválás céljából, tudományos és történelmi kutatási célból vagy
statisztikai célból, amennyiben az (1) bekezdésben említett jog valószínűsíthetően
lehetetlenné tenné vagy komolyan veszélyeztetné ezt az adatkezelést; vagy
d) jogi igények előterjesztéséhez, érvényesítéséhez, illetve védelméhez.
10.4 Az adatkezelés korlátozásához való jog
(1) Ön jogosult arra, hogy kérésére korlátozzuk az adatkezelést, ha az alábbiak
valamelyike teljesül:
a) Ön vitatja a személyes adatok pontosságát, ez esetben a korlátozás arra az
időtartamra vonatkozik, amely lehetővé teszi, hogy ellenőrizzük a személyes adatok
pontosságát;
b) az adatkezelés jogellenes, és Ön ellenzi az adatok törlését, és ehelyett kéri azok
felhasználásának korlátozását;
c) már nincs szükségünk a személyes adatokra adatkezelés céljából, de Ön igényli
azokat jogi igények előterjesztéséhez, érvényesítéséhez vagy védelméhez; vagy
d) Ön tiltakozott az adatkezelés ellen; ez esetben a korlátozás arra az időtartamra
vonatkozik, amíg megállapításra nem kerül, hogy Mandics Tímea Tünde irodavezető
a Mandics Tímea Tünde e.v. képviseletében jogos indokai elsőbbséget élveznek-e
az érintett jogos indokaival szemben.
(2) Ha az adatkezelés az (1) bekezdés alapján korlátozás alá esik, az ilyen
személyes adatokat a tárolás kivételével csak az Ön hozzájárulásával, vagy jogi
igények előterjesztéséhez, érvényesítéséhez vagy védelméhez, vagy más
természetes vagy jogi személy jogainak védelme érdekében, vagy az Unió, illetve
valamely tagállam fontos közérdekéből lehet kezelni.
(3) Az adatkezelés korlátozásának feloldásáról előzetesen tájékoztatjuk Önt.
10.5 A személyes adatok helyesbítéséhez vagy törléséhez, illetve az adatkezelés
korlátozásához kapcsolódó értesítési kötelezettség
Mandics Tímea Tünde irodavezető Mandics Tímea Tünde e.v. képviseletében
minden olyan címzettet tájékoztat valamennyi helyesbítésről, törlésről vagy
adatkezelés-korlátozásról, akivel, illetve amellyel a személyes adatot közöltük,
kivéve, ha ez lehetetlennek bizonyul, vagy aránytalanul nagy erőfeszítést igényel. Az
Ön kérésére tájékoztatjuk e címzettekről.
10.6 Az adathordozhatósághoz való jog
(1) Ön jogosult arra, hogy az Önre vonatkozó, általa a rendelkezésünkre bocsátott
személyes adatokat tagolt, széles körben használt, géppel olvasható formátumban
megkapja, továbbá jogosult arra, hogy ezeket az adatokat egy másik adatkezelőnek
továbbítsa anélkül, hogy ezt akadályozná Mandics Tímea Tünde irodavezető
Mandics Tímea Tünde e.v. képviseletében, ha:
a) az adatkezelés hozzájáruláson, vagy szerződésen alapul; és
b) az adatkezelés automatizált módon történik.
(2) Az adatok hordozhatóságához való jog (1) bekezdés szerinti gyakorlása során Ön
jogosult arra, hogy – ha ez technikailag megvalósítható – kérje a személyes adatok
adatkezelők közötti közvetlen továbbítását.
10.7 A tiltakozáshoz való jog
(1) Ön jogosult arra, hogy a saját helyzetével kapcsolatos okokból bármikor
tiltakozzon személyes adatainak jogos érdeken alapuló kezelése ellen, ideértve
profilalkotást is. Ebben az esetben a személyes adatokat nem kezeljük tovább,
kivéve, ha bizonyítjuk, hogy az adatkezelést olyan kényszerítő erejű jogos okok
indokolják, amelyek elsőbbséget élveznek az Ön érdekeivel, jogaival és
szabadságaival szemben, vagy amelyek jogi igények előterjesztéséhez,
érvényesítéséhez vagy védelméhez kapcsolódnak.
(2) Ha a személyes adatok kezelése közvetlen üzletszerzés érdekében történik, Ön
jogosult arra, hogy bármikor tiltakozzon az Önre vonatkozó személyes adatok e
célból történő kezelése ellen, ideértve a profilalkotást is, amennyiben az a közvetlen
üzletszerzéshez kapcsolódik.
(3) Ha Ön tiltakozik a személyes adatok közvetlen üzletszerzés érdekében történő
kezelése ellen, akkor a személyes adatok a továbbiakban e célból nem kezelhetők.
(4) Az információs társadalommal összefüggő szolgáltatások igénybevételéhez
kapcsolódóan és a 2002/58/EK irányelvtől eltérve Ön a tiltakozáshoz való jogot
műszaki előírásokon alapuló automatizált eszközökkel is gyakorolhatja.
(5) Ha a személyes adatok kezelésére tudományos és történelmi kutatási célból vagy
statisztikai célból kerül sor, Ön jogosult arra, hogy a saját helyzetével kapcsolatos
okokból tiltakozhasson az Önre vonatkozó személyes adatok kezelése ellen, kivéve,
ha az adatkezelésre közérdekű okból végzett feladat végrehajtása érdekében van
szükség.
10.8 A felügyeleti hatóságnál történő panasztételhez való jog
Ön jogosult arra, hogy panaszt tegyen egy felügyeleti hatóságnál – különösen a
szokásos tartózkodási helye, a munkahelye vagy a feltételezett jogsértés helye
szerinti tagállamban –, ha az Ön megítélése szerint az Önre vonatkozó személyes
adatok kezelése megsérti a GDPR-t. Magyarországon az illetékes felügyeleti
hatóság: Nemzeti Adatvédelmi és Információszabadság Hatóság (http://naih.hu/;
1530 Budapest, Pf.: 5.; telefon: +36-1-391-1400; fax: +36-1-391-1410; e-mail:
ugyfelszolgalat@naih.hu).
10.9 A felügyeleti hatósággal szembeni hatékony bírósági jogorvoslathoz való jog
(1) Ön jogosult a hatékony bírósági jogorvoslatra a felügyeleti hatóság Önre
vonatkozó, jogilag kötelező erejű döntésével szemben.
(2) Ön jogosult a hatékony bírósági jogorvoslatra, ha az illetékes felügyeleti hatóság
nem foglalkozik a panasszal, vagy három hónapon belül nem tájékoztatja Önt a
benyújtott panasszal kapcsolatos eljárási fejleményekről vagy annak eredményéről.
(3) A felügyeleti hatósággal szembeni eljárást a felügyeleti hatóság székhelye szerinti
tagállam bírósága előtt kell megindítani.
10.10 Az adatkezelővel vagy az adatfeldolgozóval szembeni hatékony bírósági
jogorvoslathoz való jog
(1) Ön hatékony bírósági jogorvoslatra jogosult, ha megítélése szerint a személyes
adatainak a GDPR-nak nem megfelelő kezelése következtében megsértették a
GDPR szerinti jogait.
(2) Az adatkezelővel vagy az adatfeldolgozóval szembeni eljárást az adatkezelő vagy
az adatfeldolgozó tevékenységi helye szerinti tagállam bírósága előtt kell
megindítani. Az ilyen eljárás megindítható az érintett szokásos tartózkodási helye szerinti tagállam bírósága előtt is.
Hasonló ingatlanok
Budapest XIII. kerület, Váci út
XIII. kerület, Westenddel szemben, modern 2 + 2szobás, PANORÁMÁS lakás kiadó!
Kiváló központi elhelyezkedés – ...
Budapest XIII. kerület (Újlipótváros), Ipoly utca
XIII. kerület, Ipoly utcában, 2 szobás, ERKÉLYES, igényes 6. emeleti lakás kiadó!
A ház kiváló lokáció szempon...